HerculaneuminPictures

Herculaneum / Ercolano Insula VI

Premi le foto o i link sottostanti per vedere le immagini di una di queste aree

Press the photos or links below to see the pictures for any of these locations

Herculaneum VI.1

Herculaneum / Ercolano VI.1

Thermae Centrali or Central Baths, main entrance. Linked to VI.7, VI.8 and VI.10

Go to Herculaneum VI.1

 

Herculaneum VI.2

Herculaneum / Ercolano VI.2

Hospitium, small inn or lodgings, linked to VI.3

Go to Herculaneum VI.2

 

Herculaneum VI.3

Herculaneum / Ercolano VI.3

Hospitium, small inn or lodgings, linked to VI.2

Go to Herculaneum VI.3

 

Herculaneum VI.4

Herculaneum / Ercolano VI.4

Rectangular space at the side of the palaestra and  connected with VI.5

Go to Herculaneum VI.4

 

Herculaneum VI.5

Herculaneum / Ercolano VI.5

Doorway to open-air exercise yard, now leading to the east portico of the columned portico

Go to Herculaneum VI.5

 

Herculaneum VI.6

Herculaneum / Ercolano VI.6

Shop with rear room. Connected to rectangular exercise area and VI.5

Go to Herculaneum VI.6

 

Herculaneum VI.7

Herculaneum / Ercolano VI.7

Central Baths corridor leading to the palaestra and across that to the Men’s Baths

Go to Herculaneum VI.7

 

Herculaneum VI.8

Herculaneum / Ercolano VI.8

Terme Centrali or Central Baths. The entrance to the Women’s Baths

Go to Herculaneum VI.8

 

Herculaneum VI.9

Herculaneum / Ercolano VI.9

Shop formed from the original entrance vestibule to the women’s baths?

Go to Herculaneum VI.9

 

Herculaneum VI.10

Herculaneum / Ercolano VI.10

Entrance to service quarters, praefurnium, water tower and deep well of the Central Baths

Go to Herculaneum VI.10

 

Herculaneum VI.11

Herculaneum / Ercolano VI.11

Rear entrance of Casa del Salone Nero or House of the black salon or room at VI.13

Go to Herculaneum VI.11

 

Herculaneum VI.12

Herculaneum / Ercolano VI.12

Shop of a plumbarius (bronze worker or repairer) once part of the Casa del Salone Nero

Go to Herculaneum VI.12

 

Herculaneum VI.13

Herculaneum / Ercolano VI.13

Casa del Salone nero or House of the black salon or room, linked to rear entrance at VI.11

Go to Herculaneum VI.13

 

Herculaneum VI.14

Herculaneum / Ercolano VI.14

Shop or bar with sign advertising jugs and drinks with AD CVCVMAS (Ad Cucumas) above

Go to Herculaneum VI.14

 

Herculaneum VI.15

Herculaneum / Ercolano VI.15

Shop, with remains of carbonised floor/ceiling support beams, and stairs/ladder to an upper floor

Go to Herculaneum VI.15

 

Herculaneum VI.16

Herculaneum / Ercolano VI.16

Shop. Linked to atrium of VI.17. Originally a cubiculum opening into the atrium

Go to Herculaneum VI.16

 

Herculaneum VI.17

Herculaneum / Ercolano VI.17

Casa del Colonnato Tuscanico or House of the Tuscan Colonnade

Go to Herculaneum VI.17

 

Herculaneum VI.18

Herculaneum / Ercolano VI.18

Shop connected at rear to atrium of VI.17

Go to Herculaneum VI.18

 

Herculaneum VI.19

Herculaneum / Ercolano VI.19

Bar or single-roomed shop, with storage jars but no decoration

Go to Herculaneum VI.19

 

Herculaneum VI.20

Herculaneum / Ercolano VI.20

Shrine or schola, a place for gatherings

Go to Herculaneum VI.20

 

Herculaneum VI.21

Herculaneum / Ercolano VI.21

Sede degli Augustali or Hall of the Augustales or Curia, linked to VI.24

Go to Herculaneum VI.21

 

Herculaneum VI.22

Herculaneum / Ercolano VI.22

Pondera or weights and measures office? Linked to VI.23

Go to Herculaneum VI.22

 

Herculaneum VI.23

Herculaneum / Ercolano VI.23

Schola or meeting place? Linked to VI.22

Go to Herculaneum VI.23

 

Herculaneum VI.24

Herculaneum / Ercolano VI.24

Rear door of Sede degli Augustali or Hall of the Augustales or Curia (VI.21)

Go to Herculaneum VI.24

 

Herculaneum VI.25

Herculaneum / Ercolano VI.25

Shop with stairs up and no decoration

Go to Herculaneum VI.25

 

Herculaneum VI.26

Herculaneum / Ercolano VI.26

Rear entrance of Casa del Colonnato Tuscanico (VI 17)

Go to Herculaneum VI.26

 

Herculaneum VI.27

Herculaneum / Ercolano VI.27

Steps to apartment above rear of the Casa del Colonnato Tuscanico

Go to Herculaneum VI.27

 

Herculaneum VI.28

Herculaneum / Ercolano VI.28

Cella Ostiaria? Doorway to room, linked to atrium of VI.29

Go to Herculaneum VI.28

 

Herculaneum VI.29

Herculaneum / Ercolano VI.29

Casa dei Due Atri or House of the two atriums

Go to Herculaneum VI.29

 

Herculaneum VI.30

Herculaneum / Ercolano VI.30

Area in north-west corner of Central Baths

Go to Herculaneum VI.30

 

Herculaneum VI.31

Herculaneum / Ercolano VI.31

Latrine and tiny room for door-keeper of men’s Central Baths

Go to Herculaneum VI.31

 

Herculaneum Insula II Plan

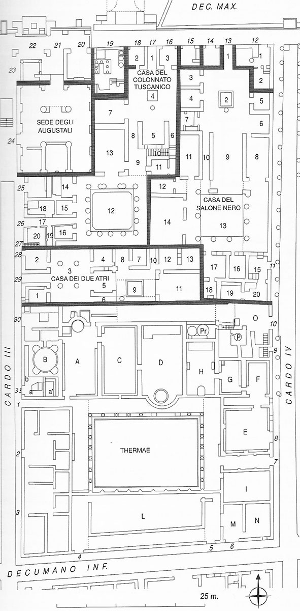
Herculaneum / Ercolano Insula VI Plan

Go to Herculaneum Insula VI Plan

 

 

Herculaneuminpictures home page

Herculaneuminpictures home page

Go to herculaneuminpictures home page

 

 

 


The low resolution pictures on this site are copyright © of Jackie and Bob Dunn and MAY NOT IN ANY CIRCUMSTANCES BE USED FOR GAIN OR REWARD COMMERCIALLY. On concession of the Ministero della Cultura - Parco Archeologico di Ercolano. It is declared that no reproduction or duplication can be considered legitimate without the written authorization of the Parco Archeologico di Ercolano.

Le immagini fotografiche a bassa risoluzione pubblicate su questo web site sono copyright © di Jackie e Bob Dunn E NON POSSONO ESSERE UTILIZZATE, IN ALCUNA CIRCOSTANZA, PER GUADAGNO O RICOMPENSA COMMERCIALMENTE. Su concessione del Ministero della Cultura - Parco Archeologico di Ercolano. Si comunica che nessun riproduzione o duplicazione può considerarsi legittimo senza l'autorizzazione scritta del Parco Archeologico di Ercolano.

Ultimo aggiornamento - Last updated: 21-Nov-2023 18:08